Saint-Gilles

  • date2015
  • clientParticular
  • surface110 sqm
  • locationBrussels
  • budget100.000€
description

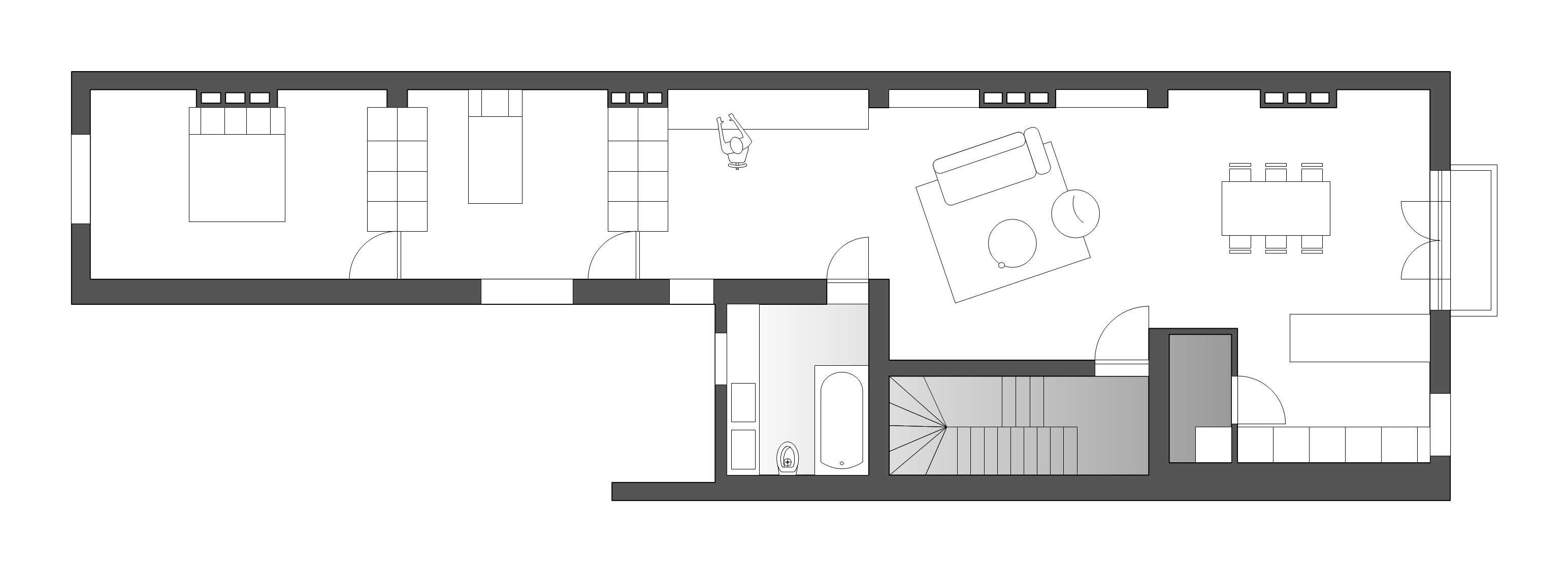
L’appartement est situé à Saint-Gilles, Rue Gustave Defnet, dans un petit immeuble de 4 niveaux datant de 1907. Il est implanté au 3ème étage et présente une configuration typique de l’époque : de petites pièces en enfilade sur une profondeur de près de 25 m. La façade avant, orientée à l’Est, est beaucoup plus large que les annexes à l’arrière qui bénéficie d’un ensoleillement Sud et Ouest. Le relief du terrain procure un environnement assez dégagé à l’arrière. 

L’option prise est de démolir l’ensemble des murs et des cloisons intérieures de manière à disposer d’une surface ouverte sur l’ensemble du plateau. La cuisine ouverte sur la salle à manger permet de dilater l’espace au niveau de la façade et de bénéficier d’un large plan de travail très convivial. Une petite buanderie est implantée entre la cuisine et la cage d’escalier. Un salon est aménagé dans l’espace intermédiaire et se prolonge par un espace de travail (bureau et bibliothèque). Il bénéficie d’un bel éclairage naturel tout comme les deux chambres à l’arrière et la salle de bain. Des portes et des bandeaux vitrés entourent des doubles placards constituant ainsi le cloisonnement des chambres. De cette manière, l’ensemble est perçu comme un seul espace au cœur duquel le soleil pénètre tout au long de la journée.

 
read more