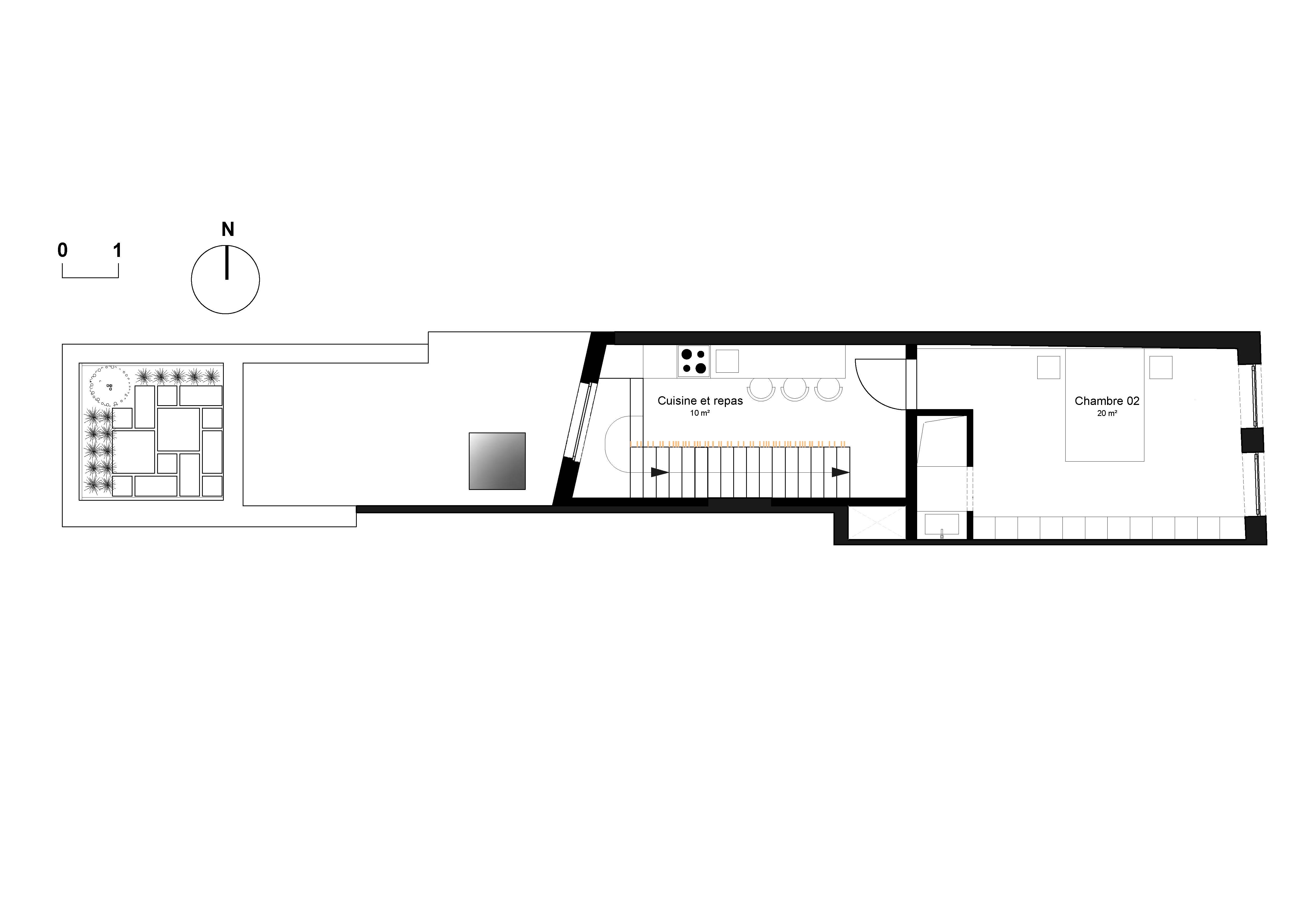
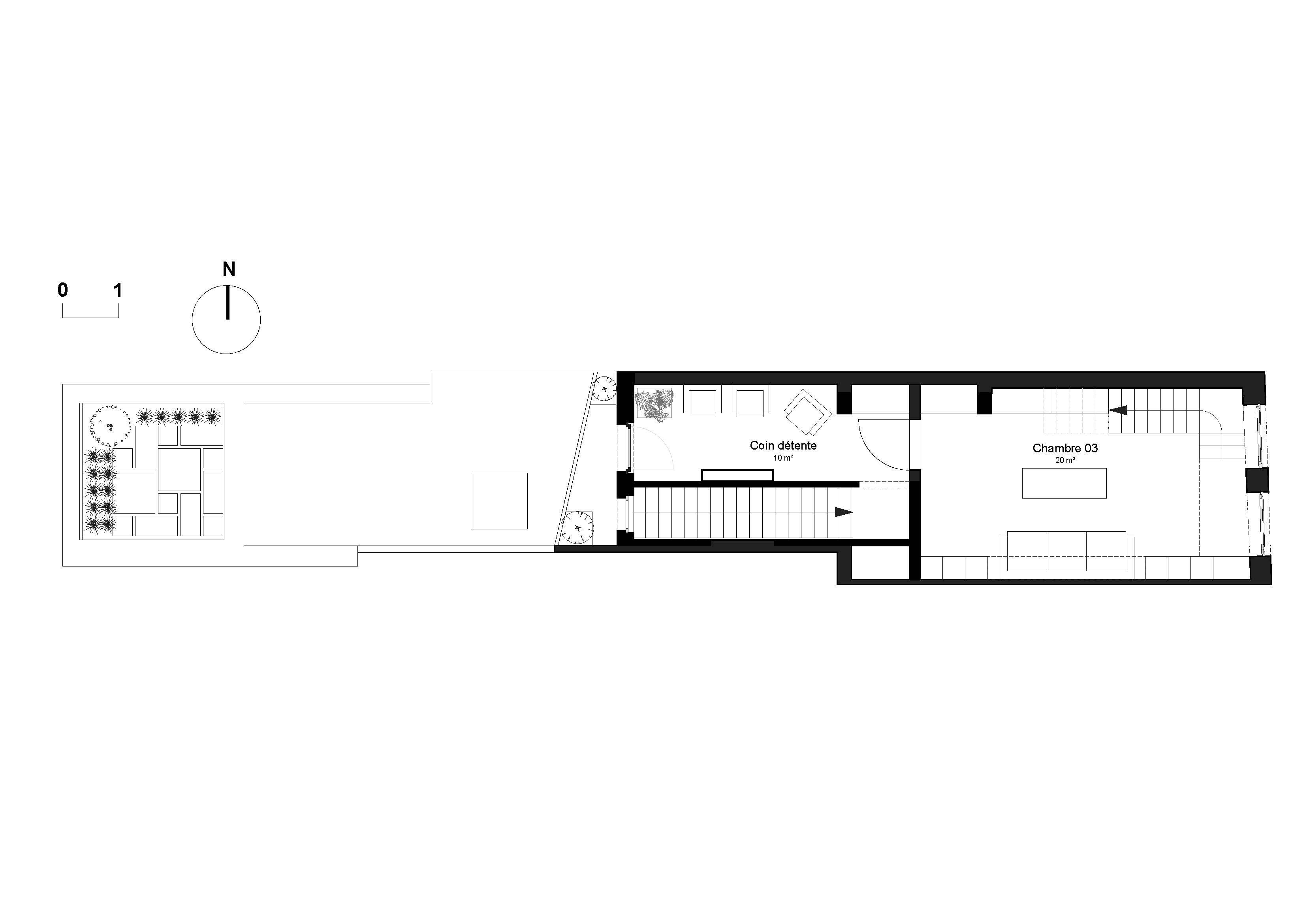
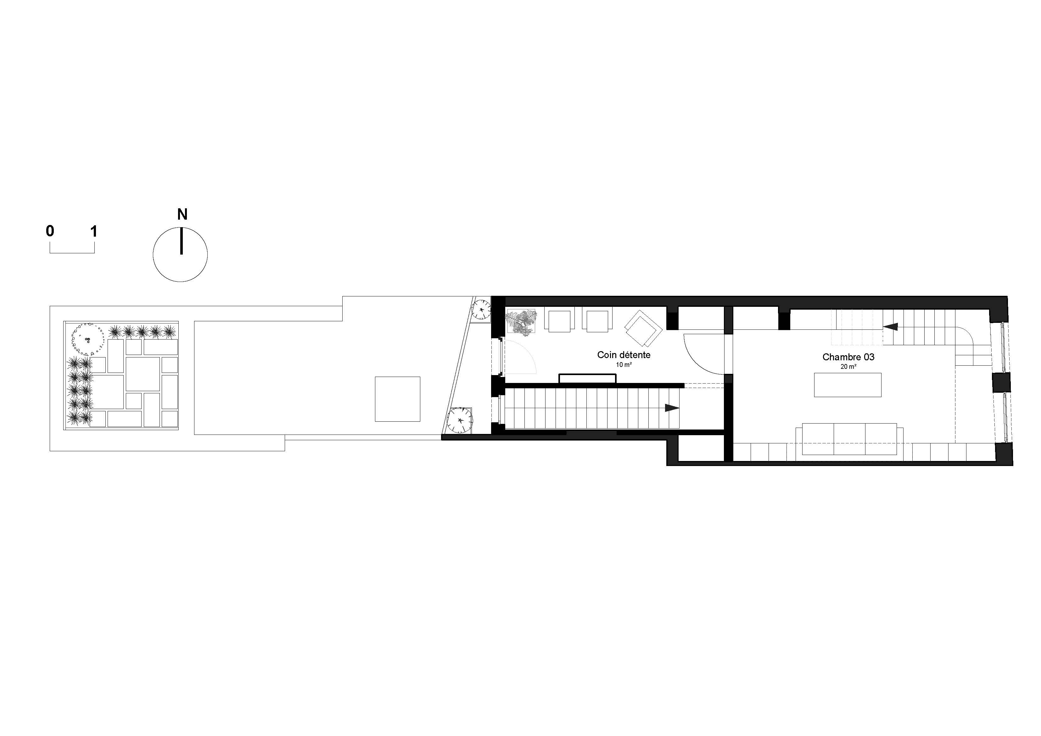
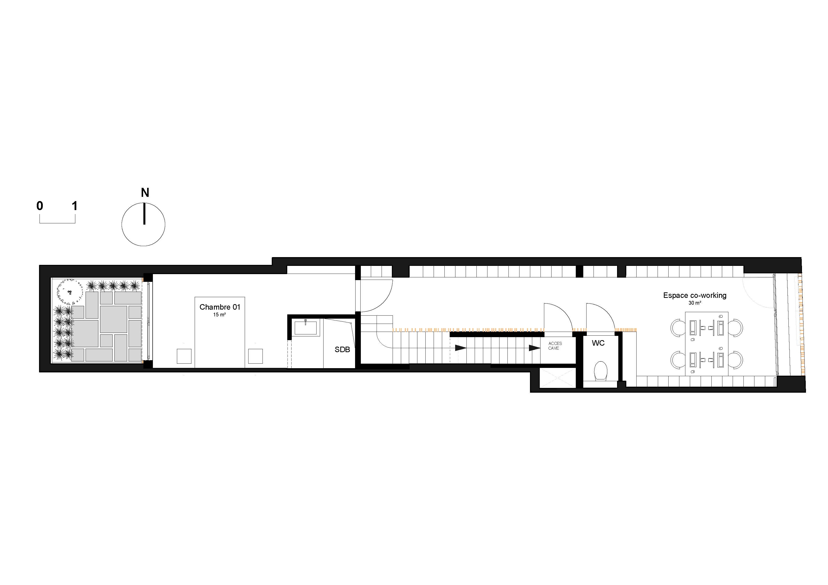
Localized 30 Rue de Bertaimont in Mons, this project consists in renovation. Many criteria define this project as the plot's narrowness linked to the huge height beneath the ceiling and the depth of the existing construction. These attributes ask to organize by judicious way different functions to benefit a beautiful natural light. The fundamental idea is to insert the stair with a central position by implanting the different functions around it.
In fact, this building will consist to a shared accommodation by students. Starting by a coworking space on the ground floor which permit to work together to the occupants and following by another shared place on the first floor which allows to cook and to eat together and finally, a rest area is planned on the second floor.
Otherwise, this housing includes three bedrooms spread on each level. Each one gets an important quantity of natural light ( on the ground floor by the rear yard, 1st floor and 2nd floor by the street).
The different common spaces are isolated by a claustrum allowing to ensure the intimate wanted. This one preserves a kind of permeability between the different functions and in the same time, a feeling of space.
The architecture and the interior design are wanted as contemporary and cozy. These are integrated to the context and suitable to the occupants’ well-being by giving private and common spaces with great quality.