FAMIFED

  • date2018
  • clientFamifed
  • surface490 sqm
  • locationBrussels
  • budget950.000€
description

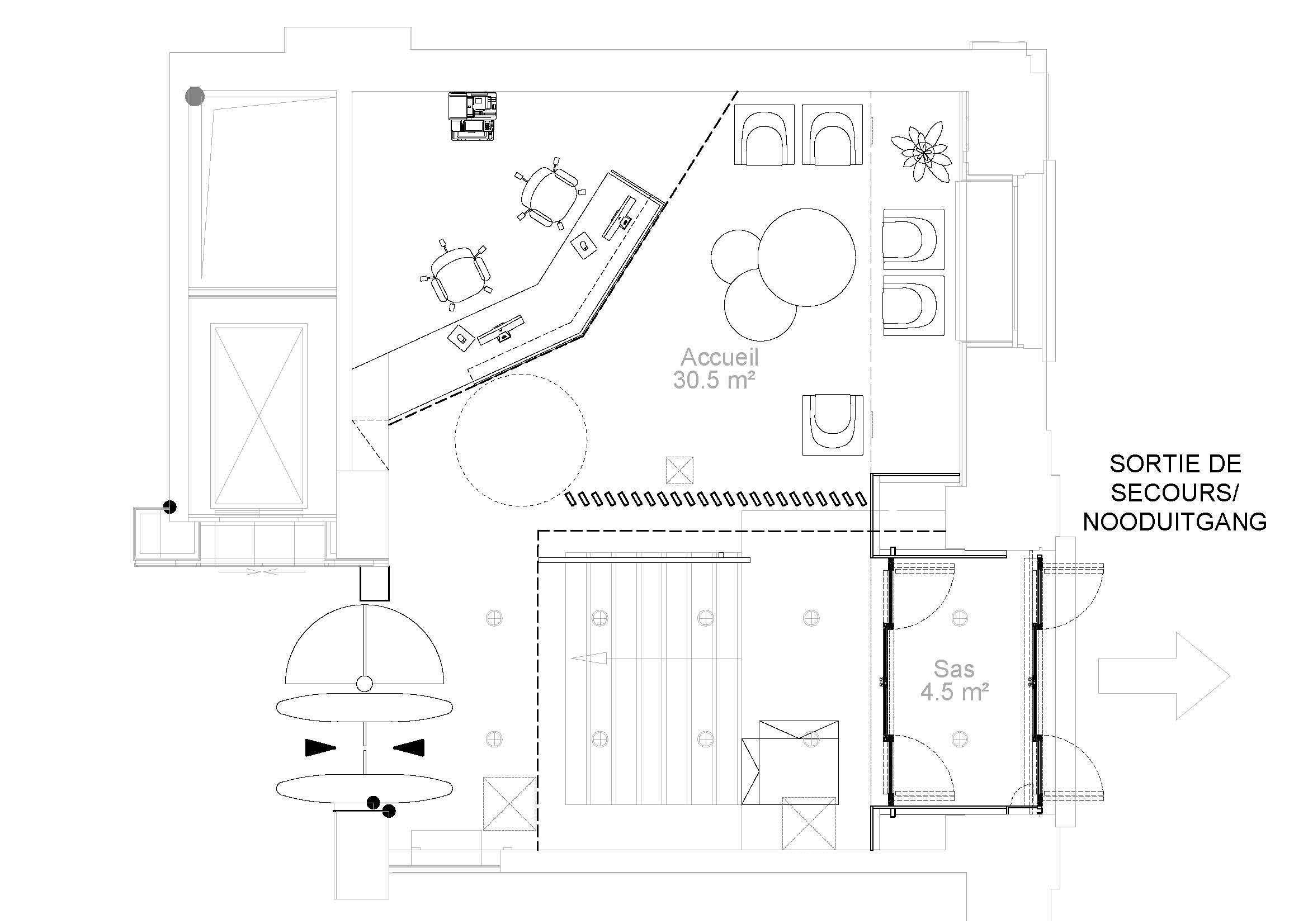
Avec la 6ème réforme de l’Etat, les allocations familiales sont régionalisées. De nouveaux espaces sont nécessaires pour abriter les futures caisses d’allocation et permettre l’accueil du public. Le présent projet consiste en la création d’un espace Front Desk dédié aux clients ainsi qu’en l’aménagement d’un nouveau hall d’entrée et d’espaces de réunion. Le rez de chaussée du bâtiment situé à l’angle de la Rue de la loi et de la Rue de Trèves est complètement réaménagé, il deviendra en 2020, le nouveau siège de FAMIRIS.

Le front Desk est accessible par la Rue de Trèves, il se divise en trois parties : le hall d’attente et les guichets, la zone de jeux et l’espace de confidentialité. L’entrée a été réaménagée de manière à créer un appel visuel depuis l’extérieur. Il s’agit d’un cube rétro éclairé qui met en avant les valeurs de l’institution, l’enfance, la famille et la multi culturalité. La porte d’entrée franchie, un élément courbe et organique se propose telle une interface entre le client et le fournisseur de services. Les courbes se prolongent  et dévoilent la borne interactive, les guichets et l’espace de confidentialité. Ce mouvement ondulant apporte une grande lisibilité dans la succession des espaces, les circulations sont fluides et naturelles. Les assises destinées au public s’organisent suivant les mêmes principes.

L’objectif du projet est de procurer bien-être et confort aux divers utilisateurs. Lumière douce, acoustique soignée, ergonomie des postes de travail, sécurité, qualité de l’air, ambiance chaude, matériaux naturels, design soigné sont autant d’éléments qui permettent de créer un environnement de qualité.

L’utilisation de matériaux acoustiques (absorbants et isolants) sur les différentes parois permet d’assurer non seulement une ambiance sonore feutrée mais également, la confidentialité nécessaire aux différentes conversations qui ont lieu simultanément. Les desks sont traités comme des alcôves qui permettent à chacun de discuter sereinement.  

La nouvelle entrée du Personnel est aménagée sur l’avenue Béliard. Elle reprend les mêmes thématiques, couleurs et matières qui participent à la réussite du projet tout en procurant une image cohérente à l’institution. 

Que ce soit dans l’espace d’attente à l’ambiance relaxante et fraîche ou dans la zone de jeux traitée de manière ludique et colorée, chaque élément du projet met en exergue les valeurs de FAMIFED.

 
read more