Like the new station, the Mons Convention Center represents the future of the city as a central and lively place in the heart of Europe. A place for meetings, congresses or public events, the building draws energy from the activities it hosts. The dynamic ribbons which constitute its structure are erected as a landmark to constitute the new icon of the city. A wood-clad wall rises from the forecourt to reveal the sloping glass facade. Above, the ribbed walls develop in an ascending spiral, they create a dynamic architecture. The movement ends with a cantilevered metal point oriented towards the Belfry located on the other side of the railway and which it seems to designate. Although it reaches a height of 17m, the Congress Center does not impose itself on the environment, it participates in its development.
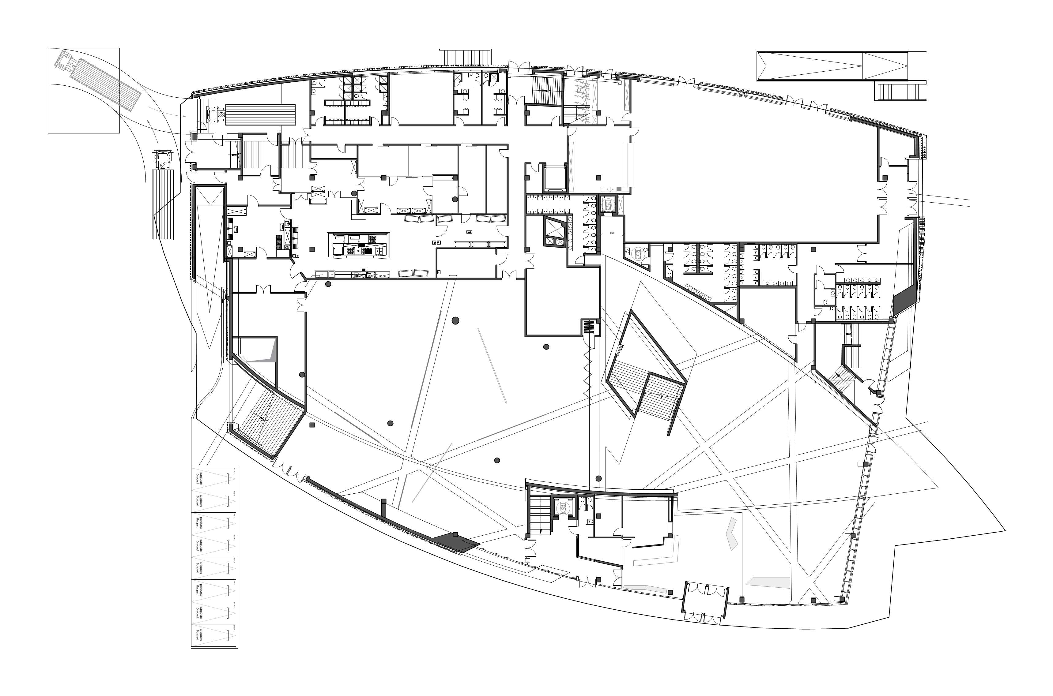
Inside, the ribbons surround the main public spaces. They draw the envelope for the forum and the auditoriums by connecting them together, horizontally and vertically. The conference and committee rooms were located on the upper floor, a decision less influenced by structural efficiency than by the intention to enhance communication with the outside through large glass openings. The forum, the reception hall and the multipurpose room are emerging as extensions of the outdoor spaces towards the heart of the building. The auditoriums are accessible from the entrance via an atrium, a monumental staircase and a large open platform on the mezzanine on the forum, inviting visitors to take advantage of the interior spaces.
In terms of energy and the environment, the building is the result of a global approach that goes far beyond regulatory objectives. It is the subject of an VALIDEO environmental certification, rated "Very Good".
The layout of the surroundings contributes to the legibility and accessibility of the Congress Center. A walk takes the visitor from the esplanade to the fitted roof. The different floor coverings create a variety of atmospheres that participate in the architectural experience. Points of view are revealed, rest areas welcome the passer-by, the planted areas (notably green roofs) invite you to relax and contemplate.