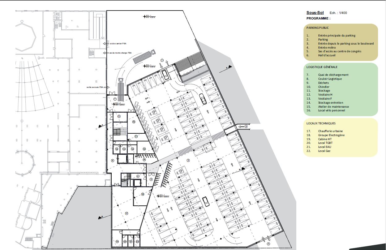
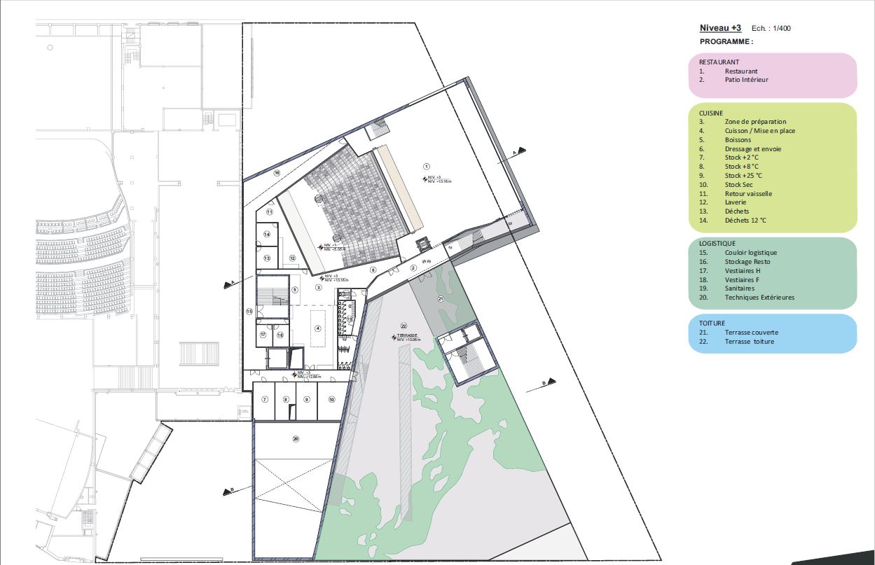
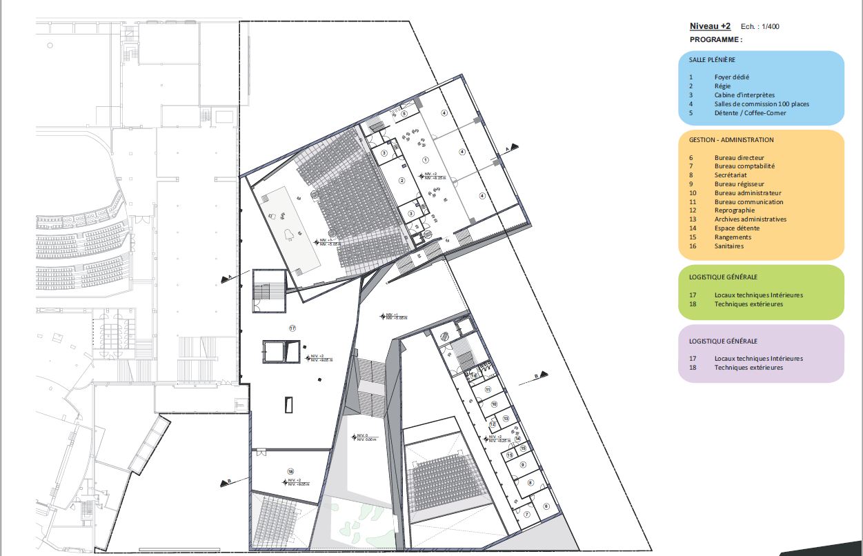
Congress Center of Charleroi

  • date2015
  • clientCity of Charleroi - Intercommunal Igretec
  • locationCharleroi
  • budget20.000.000€
description

Le Centre des Congrès est un élément majeur tant du Pôle des Grandes Conférences et de l’événementiel que de la Ville de Charleroi par sa fonction et la symbolique qu’il véhicule. Par sa présence, il participera au renforcement de l’attractivité urbaine pour les citoyens, les visiteurs et les entreprises.

La volonté première est de recréer un plan dans l’alignement du Boulevard Solvay afin que la façade du PBA puisse retrouver l’expression de ses courbes. Par corollaire, ce plan referme le patio. La récente intervention sur le palais des Beaux-arts est conservée mais reléguée en arrière-plan évitant ainsi toute confusion dans la perception des hiérarchies. Le travail sur les contrastes permet à la façade du PBA de révéler sa finesse. La perception visuelle des deux entités est plus aisée. L’utilisation d’une résille métallique percée suivant le principe de la similigravure permet l’introduction de relief virtuel dans le traitement de la façade du Centre des Congrès. Les courbes du PBA peuvent s’affirmer et répondre aux failles, aux nervures et aux plans de clivage bruts du Centre des Congrès. Grâce à cette résille, la façade du Centre des Congrès exprime tout le paradoxe qui existe entre sa masse imposante et la légèreté de la peau qui l’englobe.

En référence au passé industriel de la région et aux hommes qui ont façonné la ville, CCC est tel un cristal de roche comportant des plans de clivage qui le découpent pour révéler des espaces amples et lumineux qui s’organisent au gré des circulations. Les failles vers l’extérieur s’organisent en fonction des lignes de force du paysage et de la morphologie urbaine, elles créent des connexions. Le Palais des Congrès se révèle solidement ancré dans son environnement. A l’image des sphères de Yann Perrier, dans un mouvement englobant, une peau lisse et perméable vient délicatement clore la composition.

Le respect des gabarits, des alignements et des lignes de force du paysage, la création d’un espace de transition paysager, un traitement de façade dont les tonalités s’inspirent des constructions voisines (crème, brun, briques rouges, gris anthracite), la perméabilité de la résille confèrent au Centre des Congrès une esthétique légitime qui s’inscrit naturellement dans son contexte, de jour comme de nuit.

 
read more
partners