Comines Ten-Brielen

  • date2000
  • clientCollège de La Lys
  • surface8.300 sqm
  • locationComines Ten-Brielen
  • budget900.000€
description

This project answers to an architectural competition led by Collège de La Lys. This one consists on the rebuilding of kindergarten and primary school of one of the peripheric villages of Comines: Ten Brielen.

In addition of plentiful technical, functional and architectural issues of the program, our office follows another mission which is to add a social value to the project by making the school as a true polyvalent tool for its municipality and its residents.

 

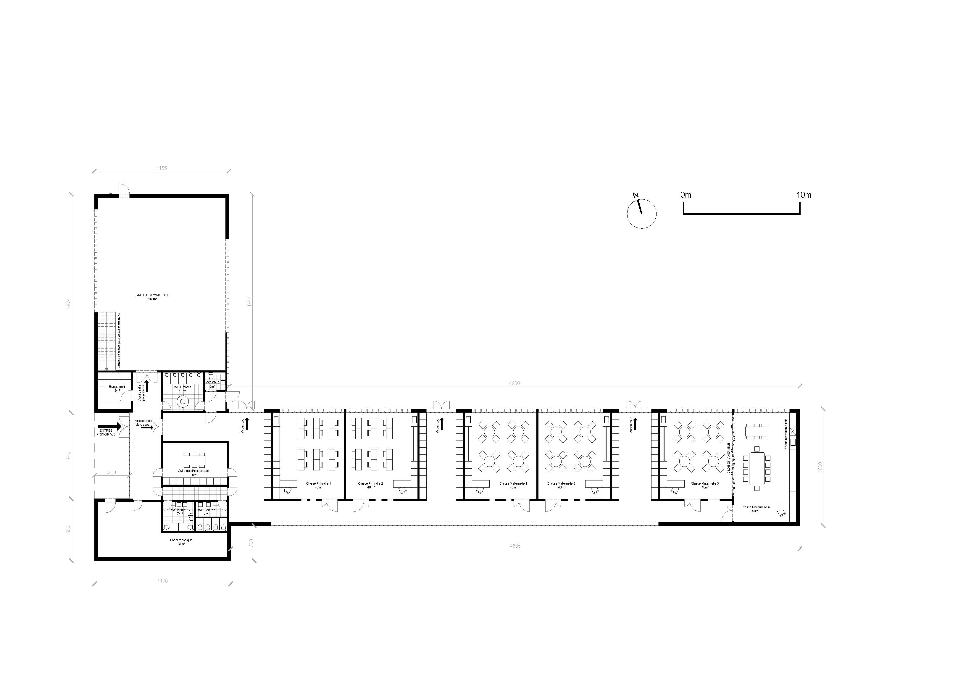
Architecturally, the project is fully integrated in its constructed and unconstructed urban context. The buildings are placed in function of two perpendicular axes determined by the South terrain limit and the front built.  Its implantation allows a great readability of the building while disengaging a wide natural and recreative space in center of the project. 

 

The functions build up under the two buildings: a volume is implanted parallelly to the roadway which welcomes a multifunctional and technical rooms and another volume perpendicular to the road which consists in the classrooms and the circulations. The intersection of these two volumes forms the entry designed as a secured esplanade. It invites the people to share time and to develop social ties of the building but also, of the village.

 

Modulable and shifted towards the nature, respectful of the environment, this project is studied to go beyond the simple role of school and to become the showcase of a society more ecological, social et sustainable.

 
 
 
 
read more