Charlot

  • date2020
  • clientPrivate
  • surface180 sqm
  • locationEstinnes (Mons)
  • budget280.000€
description

The requires of the client is to realize a unifamilial house in Estinnes municipality located in the Mons periphery.

 

The principal ambition is to design a volume of brut concrete, integrated in its context. The house is sculpted by opening windows and interaction with other volumes.

 

The access of the house is made by a path in grass slab following the natural relief of the site. This way leads to a parking and the access is bordered by green bank to create a sweet transition and vegetal between the pathway and the garden. On this access, there is a carport which integrates a technical room.

 

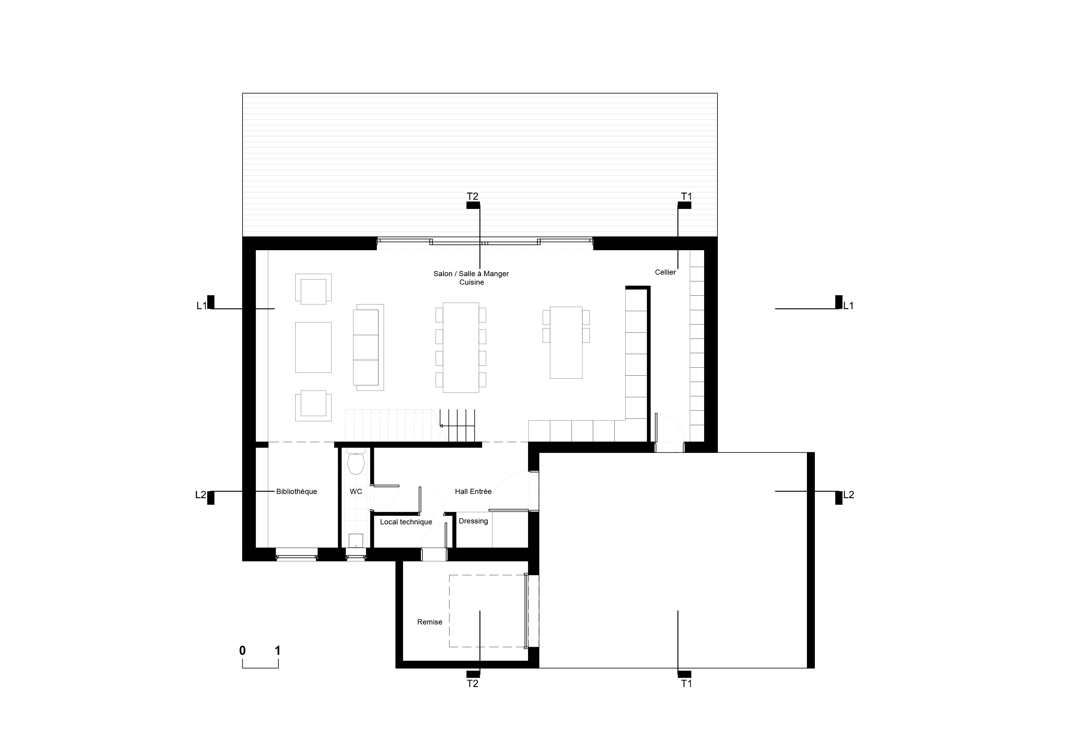
On the ground level, there is all of the living rooms like the entrance hall and its commodities, the eating room, the salon and the kitchen. The kitchen is opened on the terrace and the garden with large views. On the South/East side, an intimate space is created to give born to an office bathed of natural light.

 

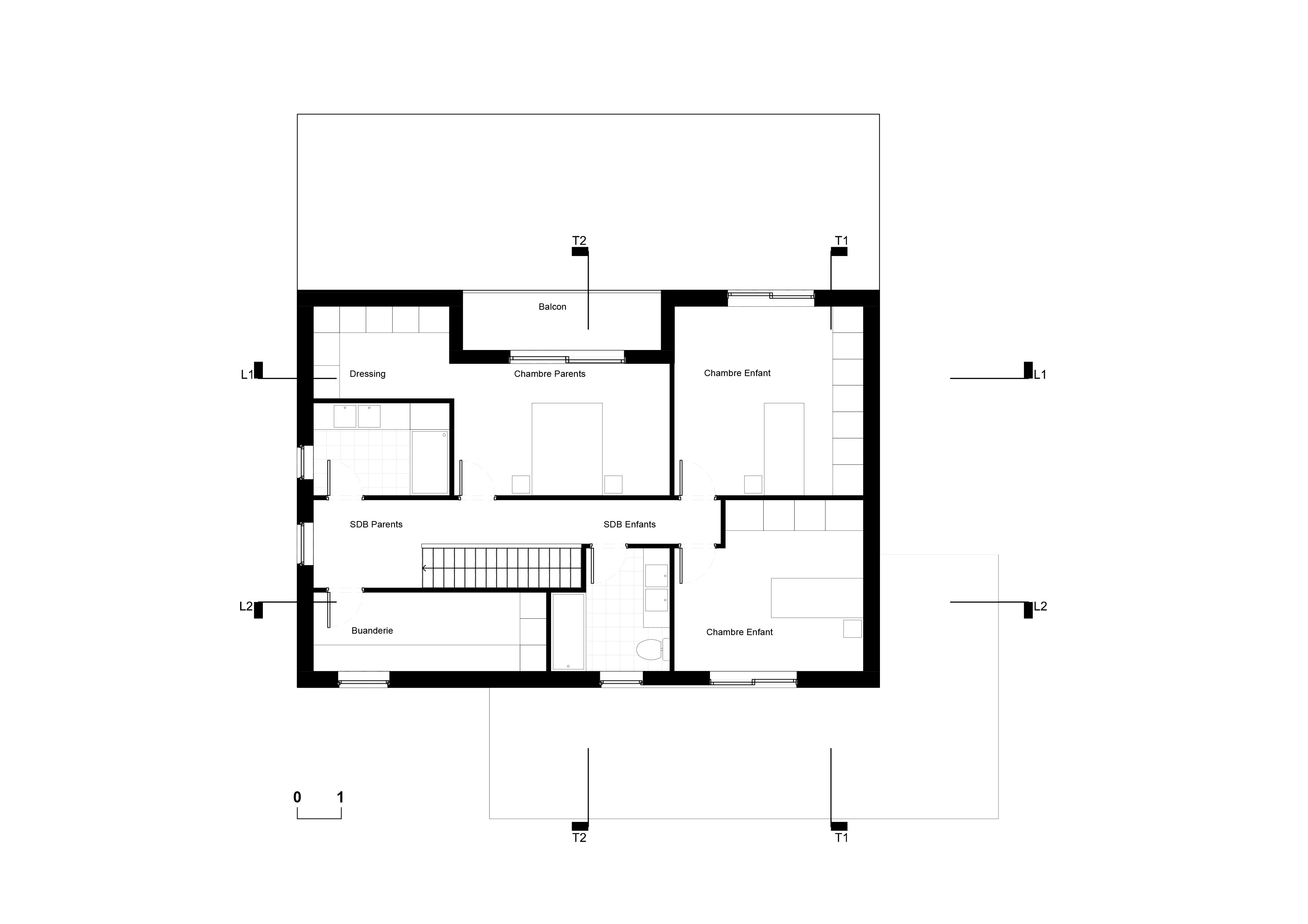
After crossing the stairs, the first floor with three bedrooms. The parental bedroom gives access to a balcony to enjoy the sun in an external place. This room includes a bathroom with a unique entry for the parents supported by a dressing. Following two large bedrooms for children and the bathroom for the children. This repartition allows to preserve the privacy of the parent and give independence and responsibility to the children. All of these rooms are deserved by a central corridor minimizing the area losses.

 
 
 
read more