Carross'Center

  • date2019
  • clientCarross'Center
  • surface4000 sqm + 25000 sqm (surrounds)
  • locationSaint-Ghislain
  • budget4.000.000€
description

This project consists in the construction of a specialized garage in the repair, the car body and the layout of bus and autocars.

 

The goal is to deliver a complex which favorizes the comfort of its employees. This is obtained according to, on one side, the layout bringing generosity and also, functionality and on the other part, by being a showcase for Carross’Center company equally by its architectural quality than its strategical place.

 

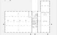
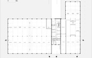
Implanted in a central position, this building unfolds it-self on its length to exploit a maximum of the terrain’s possibilities. This action allows to insert a road (10 to 25 m) around the complex while favoring the circulation and the accessibility to it. Many parking’s places are available and depending on the length of the bus. The different lengths are regrouped and spread in front of the different façades. In fact, they are positioned in function of the workspace’s entries permitting to decrease the larger of the road.

 

The building is accessible by two ways: one entry for the personnel on the North and following the showcase, another entry for the visitors. A minimal signage by a floor layout is used to dissociate the bus roadway from the access road.

 

To minimize the loss of site’s permeability caused by this new construction, we implanted some intervention to conserve this faculty. In fact, the interstitial spaces are fully vegetated with a total grassing of the unconstructed area. The implantation of a birch’s crown and marsh plants delineate the building and also, the installation of grass slabs increase the parking’s permeability.

 

About the building, it is composed of three volumes. Two are similar consisting of the different spaces of workshop. The first volume (2500 sqm) is occupied by the mechanical part and the agency of the bus. The carrosserie part (1500 sqm) is located in the second volume composed of one Tuck-Wash, spraying rooms and workshops. These two buildings are covered by anthracite metallic cladding which is a sober and elegant design remembering the bus materials. Many sectional doors treated by the same design of the walls are installed and rhythmed the façades East and West of these two volumes. On the central position, a distinguished third volume represents the key center which is the administration pole. It is easily identifiable by its orange cladding (the company color) and its height. As the comfort inflow is essential for the visitors and the employees, this element is larger glazed.

 
 
read more
partners